Im Folgenden erfahren Sie vieles zur offerierten Immobilie. Sollte diese Immobilie doch nicht so zu Ihnen passen, wie Sie es sich wünschen, kommen Sie gerne mit Ihren Wünschen auf uns zu. Wir haben neben dieser Immobilie noch viele weitere im Angebot, so dass wir gemeinsam die Richtige für Sie finden. Gerne arbeiten wir auch eine vor Ort Besichtigungstour für Sie aus, damit Sie ein noch besseres Gefühl für Ihre neue Immobilie erlangen können. Wir freuen uns auf den Kontakt mit Ihnen und stehen jederzeit für Fragen zur Verfügung.
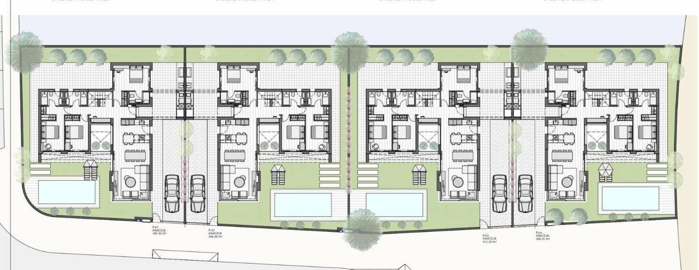
Es handelt sich um ein luxuriöses Set aus 4 Villen mit einem individuellen Pool, einem offenen Keller mit Licht und Belüftung durch einen englischen Patio und einem Solarium mit einem Grundstück von ca. 400 m2. Es befindet sich in der Urbanisation Santa Rosalía Lake & Life Torre Pacheco (Murcia).
Dies ist Ihre Gelegenheit, eine dieser Luxusvillen mit sehr begrenzter Verfügbarkeit in einem der schönsten Resorts Spaniens zu erwerben. Dies ist der Ort, der Ihre Wohlfühloase sein kann. Der seeförmige Pool mit seinen Bars, Palmen und schönen Wegen ist der perfekte Ort, um Ihren Sommerurlaub und längere Aufenthalte zu verbringen.
Solarium
Sommerküche mit drei Modulen, Arbeitsplatte aus Granit, ausgestattet mit einer Spüle mit Einhebelmischer, Elektro- und Sanitärinstallationen für eine Waschmaschine und einen Minikühlschrank (diese Geräte sind nicht im Lieferumfang enthalten)
Steckdosen und Fernseher.
Kellerausbau:
60x60 cm großer Boden aus Keramiksteinzeug mit 7 cm Fußleiste aus dem gleichen Material.
Englischer Terrassenboden mit Kunstrasen.
Weiß gestrichene Wände auf dem Beton der Struktur.
Decke mit Putzverkleidung und weißer Farbe gestrichen.
Vorinstallation einer Toilette im Sanitärbereich
Vorinstallation der Klimaanlage für zwei Splits.
Das Santa Rosalía Lake and Life Resort ist ein intimer und gemütlicher Ort, an dem Sie die Hektik der Welt hinter sich lassen können. Mit hervorragenden Annehmlichkeiten sowohl für Vollzeitbewohner als auch für Touristen ist es eine ganz neue Welt, nur 30 km vom Flughafen Murcia und 95 km vom Flughafen Alicante entfernt.
Unsere Bitte an Sie!
Sollte die Immobilie Ihr Interesse geweckt haben, bitten wir Sie, damit wir schnellstmöglich für Sie tätig werden können, uns eine Anfrage über das jeweilige Portal zu stellen. Bitte tragen Sie hier Ihre persönlichen Daten inkl. einer Rufnummer, unter welcher wir Sie erreichen können, ein. Auf Ihre Anfrage hin erhalten Sie eine Email mit einem Link von uns, wo wir Ihnen einige wichtige Informationen zukommen lassen, welche Sie durchlesen und bitte bestätigen. Dies wird mit der Möglichkeit das Expose runterzuladen belohnt. In diesem finden Sie auch unter dem Titelfoto die Adresse Ihres angefragten Objektes. Sobald dies geschehen ist, bekommen wir eine Information darüber. Gerne dürfen Sie sich zwecks Vereinbarung eines Besichtigungstermins bei uns telefonisch melden.
Bitte haben Sie Verständnis, dass wir aufgrund der Vielzahl an Anfragen, unvollständige Anfragen nicht oder nur zeitverzögert bearbeiten können.
Vielen Dank für Ihr Verständnis!
Über uns:
Seit über 15 Jahren vermitteln wir erfolgreich Immobilien in Deutschland. Die Finanzierung dieser blickt bereits auf über 20 Jahre Erfahrung zurück. Da schon immer Spanien als das Urlaubsland bereist wurde, entdeckten wir vor einigen Jahren die Costa Blanca und die Costa Calida nicht nur mit allen Annehmlichkeiten für den Urlaub, 250 km Sandstrand, über 300 Sonnentage mit ca. 3.000 Sonnenstunden pro Jahr, trockenes Klima, etc., sondern auch aus beruflicher Sicht als sehr interessanten Markt für Kapitalanleger. Für sich selbst als Ferienimmobilie und/oder auch als Kapitalanlage. Seit vielen Jahren erfahren die Immobilien einen ordentlichen Wertzuwachs.
Nach unzähligen Besichtigungen und Gesprächen mit Bauträgern, stellte sich nur die Frage wie trotz der großen Distanz unsere qualitativ hochwertige Beratung und flexible Besichtigungsmöglichkeit nach Spanien übertragen werden kann.
Die Lösung nahte durch eine Empfehlung. Vor Ort haben wir ein junges, dynamisches Maklerehepaar kennengelernt, welches im Ursprung seine Wurzeln in Deutschland hat, mittlerweile aber schon fast drei Jahrzehnte an der Costa Calida wohnt und damit die Region sehr gut kennt und vor allem mit fließendem Deutsch, Englisch und Spanisch der Top Ansprechpartner vor Ort ist.