Im Folgenden erfahren Sie vieles zur offerierten Immobilie. Sollte diese Immobilie doch nicht so zu Ihnen passen, wie Sie es sich wünschen, kommen Sie gerne mit Ihren Wünschen auf uns zu. Wir haben neben dieser Immobilie noch viele weitere im Angebot, so dass wir gemeinsam die Richtige für Sie finden. Gerne arbeiten wir auch eine vor Ort Besichtigungstour für Sie aus, damit Sie ein noch besseres Gefühl für Ihre neue Immobilie erlangen können. Wir freuen uns auf den Kontakt mit Ihnen und stehen jederzeit für Fragen zur Verfügung.
Jansen Costa Invest präsentiert diese elegante, freistehende Villa, die maximalen Komfort und Privatsphäre in einer unvergleichlichen Lage bietet. Gelegen in Ciudad Quesada, nur wenige Minuten vom Flughafen Alicante entfernt und mit allen Annehmlichkeiten in unmittelbarer Nähe, vereint diese Villa modernes Design mit charmantem mediterranem Flair.
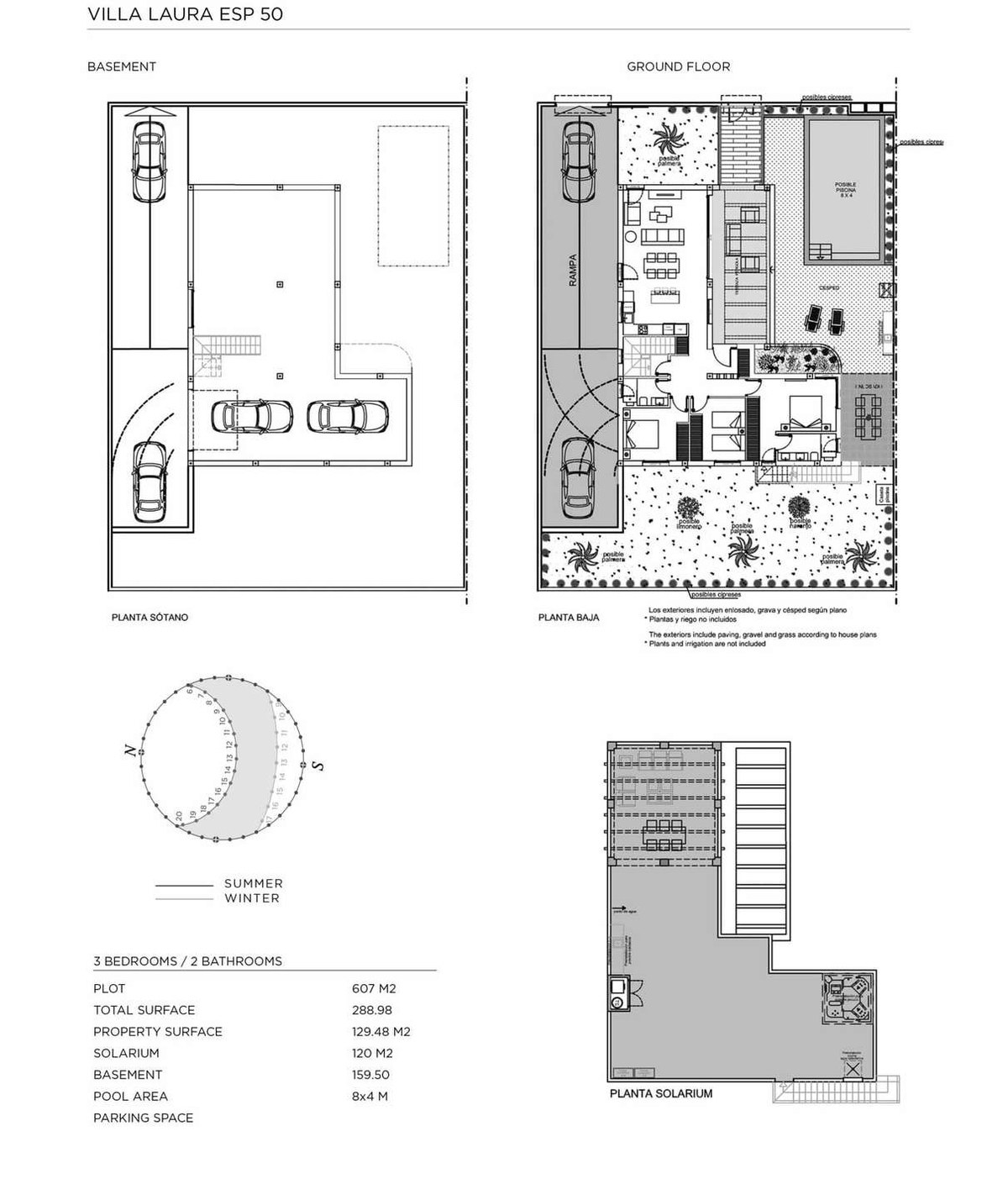
Die ebenerdige Villa verfügt über drei geräumige Schlafzimmer und zwei bis drei Badezimmer mit hellen und funktionalen Räumen. Der offene Wohn- und Essbereich mit Küche geht dank großer Fenster nahtlos in den Außenbereich über und schafft eine harmonische und einladende Atmosphäre.
Genießen Sie das privilegierte Klima der Costa Blanca in Ihrem privaten Garten mit Swimmingpool – ideal zum Entspannen und für unvergessliche Momente. Das Anwesen bietet außerdem Sitzgelegenheiten und Parkplätze.
Diese Villa bietet die perfekte Balance aus Design, Komfort und Lebensqualität in bester Lage in der Nähe von Stränden, Golfplätzen und einer Vielzahl von Freizeit- und Gastronomieangeboten.
Die Ciudad Quesada liegt an der Küste der Costa Blanca Sur und ist eine große Urbanisation, die zur Gemeinde Rojales gehört, einem hermoso kleinen landwirtschaftlichen Betrieb in der Nähe des Rio Segura. Ciudad Quesada wurde wie eine Ferienstadt gebaut, ein idealer Ort zum Golfen, Spielen in der Sonne und Golfspielen.
In diesem bezaubernden Refugium, das für Liebhaber des Mittelmeers und des Golfsports konzipiert wurde, lebt eine multikulturelle Herkunftsgemeinde in ihrem größten Teil der nördlichen Länder Europas. Die von eleganten Bürgern gebildete Urbanisierung befindet sich auf dem beliebten 18-Stunden-Golfplatz La Marquesa und zeichnet sich dadurch aus, dass sie für Spieler aus allen Ebenen geeignet ist, die als Prinzipale experimentierfreudig sind. Las Lujosas Villas, die über einer Colina gebaut wurden, bieten herrliche Ausblicke auf den Golfplatz oder den Parque Natural de las Lagunas de Torrevieja und La Mata mit dem Mittelmeer am Horizont.
Entfernung zum Flughafen
35 Min.
Entfernung zum Golfplatz
3 Min.
Entfernung zum Gesundheitszentrum
5 Min.
Entfernung zum Strand
10 Min.
Entfernung zu Freizeitangeboten
5 Min.
Entfernung zu Einkaufsmöglichkeiten
5 Min.
Kultur und Urlaub
Strände mit Blauer Flagge
Golf und Yachthafen
Über uns:
Seit über 15 Jahren vermitteln wir erfolgreich Immobilien in Deutschland. Die Finanzierung dieser blickt bereits auf über 20 Jahre Erfahrung zurück. Da schon immer Spanien als das Urlaubsland bereist wurde, entdeckten wir vor einigen Jahren die Costa Blanca und die Costa Calida nicht nur mit allen Annehmlichkeiten für den Urlaub, 250 km Sandstrand, über 300 Sonnentage mit ca. 3.000 Sonnenstunden pro Jahr, trockenes Klima, etc., sondern auch aus beruflicher Sicht als sehr interessanten Markt für Kapitalanleger. Für sich selbst als Ferienimmobilie und/oder auch als Kapitalanlage. Seit vielen Jahren erfahren die Immobilien einen ordentlichen Wertzuwachs.
Nach unzähligen Besichtigungen und Gesprächen mit Bauträgern, stellte sich nur die Frage wie trotz der großen Distanz unsere qualitativ hochwertige Beratung und flexible Besichtigungsmöglichkeit nach Spanien übertragen werden kann.
Die Lösung nahte durch eine Empfehlung. Vor Ort haben wir ein junges, dynamisches Maklerehepaar kennengelernt, welches im Ursprung seine Wurzeln in Deutschland hat, mittlerweile aber schon fast drei Jahrzehnte an der Costa Calida wohnt und damit die Region sehr gut kennt und vor allem mit fließendem Deutsch, Englisch und Spanisch der Top Ansprechpartner vor Ort ist.
Insofern können wir gemeinsam für Sie gewährleisten, dass Sie vom ersten Kontakt bis zur Übergabe der Immobilie an Sie und auch darüber hinaus eine qualitativ hochwertige Beratung und Betreuung erhalten.