Im Folgenden erfahren Sie vieles zur offerierten Immobilie. Sollte diese Immobilie doch nicht so zu Ihnen passen, wie Sie es sich wünschen, kommen Sie gerne mit Ihren Wünschen auf uns zu. Wir haben neben dieser Immobilie noch viele weitere im Angebot, so dass wir gemeinsam die Richtige für Sie finden. Gerne arbeiten wir auch eine vor Ort Besichtigungstour für Sie aus, damit Sie ein noch besseres Gefühl für Ihre neue Immobilie erlangen können. Wir freuen uns auf den Kontakt mit Ihnen und stehen jederzeit für Fragen zur Verfügung.
Jansen Costa Invest präsentiert diese freistehende Villa mit einzigartigem Design, das mediterranen Stil mit modernen architektonischen Elementen verbindet.
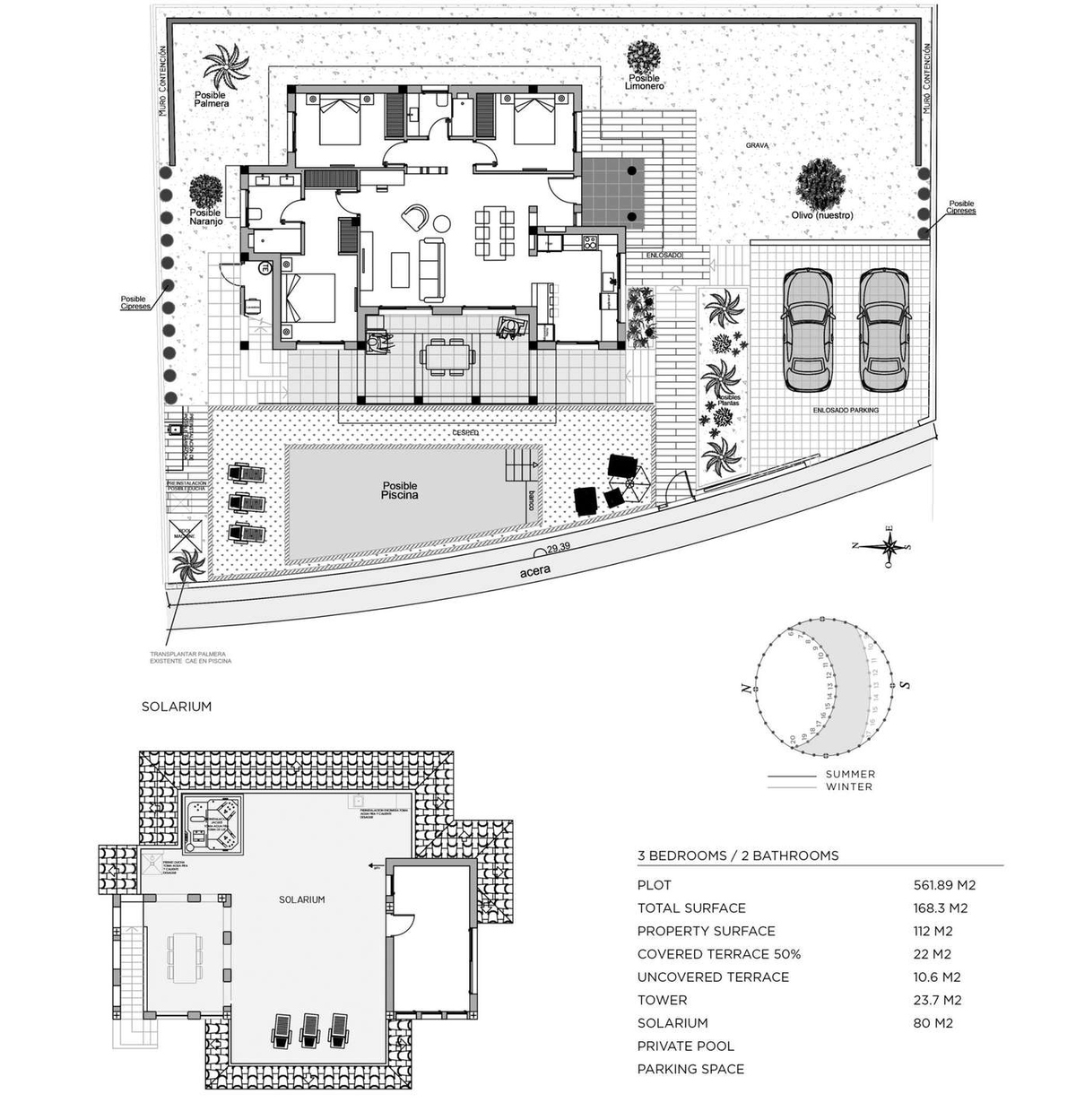
Die Villa verfügt über drei Schlafzimmer und zwei Badezimmer, einen großzügigen Wohnbereich mit einem Esszimmer mit doppelter Raumhöhe, die für viel Tageslicht und ein luftiges Raumgefühl sorgt, sowie Außenbereiche wie ein Solarium und einen Garten mit privatem Pool.
Die Villa wird komplett möbliert verkauft und ist sofort bezugsfertig!
Sie befindet sich in Ciudad Quesada mit allen Annehmlichkeiten des täglichen Bedarfs, in der Nähe der Strände von Guardamar und mit guter Anbindung an Flughäfen und Städte wie Alicante und Torrevieja.
Die Ciudad Quesada liegt an der Küste der Costa Blanca Sur und ist eine große Urbanisation, die zur Gemeinde Rojales gehört, einem hermoso kleinen landwirtschaftlichen Betrieb in der Nähe des Rio Segura. Ciudad Quesada wurde wie eine Ferienstadt gebaut, ein idealer Ort zum Golfen, Spielen in der Sonne und Golfspielen.
In diesem bezaubernden Refugium, das für Liebhaber des Mittelmeers und des Golfsports konzipiert wurde, lebt eine multikulturelle Herkunftsgemeinde in ihrem größten Teil der nördlichen Länder Europas. Die von eleganten Bürgern gebildete Urbanisierung befindet sich auf dem beliebten 18-Stunden-Golfplatz La Marquesa und zeichnet sich dadurch aus, dass sie für Spieler aus allen Ebenen geeignet ist, die als Prinzipale experimentierfreudig sind. Las Lujosas Villas, die über einer Colina gebaut wurden, bieten herrliche Ausblicke auf den Golfplatz oder den Parque Natural de las Lagunas de Torrevieja und La Mata mit dem Mittelmeer am Horizont.
Entfernung zum Flughafen
35 Min.
Entfernung zum Golfplatz
3 Min.
Entfernung zum Gesundheitszentrum
5 Min.
Entfernung zum Strand
10 Min.
Entfernung zu Freizeitangeboten
5 Min.
Entfernung zu Einkaufsmöglichkeiten
5 Min.
Kultur und Urlaub
Strände mit Blauer Flagge
Golf und Yachthafen
Über uns:
Seit über 15 Jahren vermitteln wir erfolgreich Immobilien in Deutschland. Die Finanzierung dieser blickt bereits auf über 20 Jahre Erfahrung zurück. Da schon immer Spanien als das Urlaubsland bereist wurde, entdeckten wir vor einigen Jahren die Costa Blanca und die Costa Calida nicht nur mit allen Annehmlichkeiten für den Urlaub, 250 km Sandstrand, über 300 Sonnentage mit ca. 3.000 Sonnenstunden pro Jahr, trockenes Klima, etc., sondern auch aus beruflicher Sicht als sehr interessanten Markt für Kapitalanleger. Für sich selbst als Ferienimmobilie und/oder auch als Kapitalanlage. Seit vielen Jahren erfahren die Immobilien einen ordentlichen Wertzuwachs.
Nach unzähligen Besichtigungen und Gesprächen mit Bauträgern, stellte sich nur die Frage wie trotz der großen Distanz unsere qualitativ hochwertige Beratung und flexible Besichtigungsmöglichkeit nach Spanien übertragen werden kann.
Die Lösung nahte durch eine Empfehlung. Vor Ort haben wir ein junges, dynamisches Maklerehepaar kennengelernt, welches im Ursprung seine Wurzeln in Deutschland hat, mittlerweile aber schon fast drei Jahrzehnte an der Costa Calida wohnt und damit die Region sehr gut kennt und vor allem mit fließendem Deutsch, Englisch und Spanisch der Top Ansprechpartner vor Ort ist.
Insofern können wir gemeinsam für Sie gewährleisten, dass Sie vom ersten Kontakt bis zur Übergabe der Immobilie an Sie und auch darüber hinaus eine qualitativ hochwertige Beratung und Betreuung erhalten.